美式电缆分接箱
| 美式电缆分支箱的产品概述: |
|
美式电缆分支箱是一种广泛应用于北美地区电力配网系统中的电缆化工程设备,它以单向开门、横向多通母排为主要特点,具有宽度小、组合灵活、全绝缘、全密封等显著优点。按照额定电流一般可以分为600A主回路和200A分支回路两种。600A主回路采用旋入式螺栓固定连接;200A分支回路采用拔插式连接,且可以带负荷拔插。美式电缆分支箱所采用的电缆接头符合IEEE 386标准。 |
| 美式电缆分支箱的使用环境: |
|
1、安装场所:户外 |
| 美式电缆分支箱的功能特点: |
|
◆ 全绝缘、全密封结构,无需绝缘距离,可靠保证人身安全。
|
| 美式电缆分支箱方案图: |
|
|
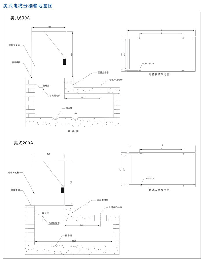
| 美式电缆分支箱的安装基础图: |
|
|




