LW36-126型户外六氟化硫断路器概述:
LW36-126型该产品与国外同类型产品相比,更能满足国内电力市场的需求。我公司不仅可以根据用户的不同需求,设计出灵活多样的布置形式,并可以
实行整个变电站一次设备(包括间隔支承母线、杆塔等)及二次设备的总承包。LW36-126型敞开式组合电器,结构先进,性能优良,各项技术参数完全满足GB和IEC相关标准的要求。该产品既有封闭式组合电器结构紧
凑、占地面积小的特点,又有敞开式电器价格便宜、检修方便的优点,其占地面积比常规电站减少约60%,尤其适合城网、山区和工矿企业变电站选用。
LW36-126型户外六氟化硫断路器结构简介:
该产品有户内和户外两种布置形式,每种布置形式可分为断路器间隔和测保间隔。每个间隔均由固定部分和可动部分两大部分组成。固定部
分包括隔离插头、接地开关和就地操作控制柜等。可动部分是以小车为基座而将不同电器元件组装在一起的可整体移动的电器模块。断路器间隔的可动部分由自能式SF6断路器、电流互感器和隔离插头等组成。测保间隔的可动部分由电压互感器、避雷器和隔离插头等组成。
LW36-126型户外六氟化硫断路器主要特点:
断路器为新一代自能式SF6断路器,配弹簧操动机构。
断路器间隔和测保间隔的结构形式一致。
小车和接地开关均配电动操动机构,包括断路器在内均可在就地操作控制柜内进行近控操作。
从就地操作控制柜至各元件的二次接线为插接式,还可以提供智能控制柜,实现无人值守。
一次接线方式灵活,检修时不影响用户连续用电。
总体布置简捷、美观、既可适用于户内,也可适用于户外。
LW36-126型户外六氟化硫断路器使用环境:
环境温度:-30℃~+40℃
风压:≤700Pa
海拔高度:≤3000m
地震烈度:≤8度
空气污秽程度:Ⅲ级
覆冰厚度:10mm
LW36-126型户外六氟化硫断路器主要技术参数:
序号
项目
单位
技术参数
1
额定电压
KV
126
2
额定频率
Hz
50
3
额定电流
A
3150
4
额定短路开断电流
短路电流
kA
40
直流分量
—
40%
5
额定短路持续时间
s
4
6
额定短时耐受电流
kA
40
7
额定短路关合电流(峰值)
kA
100
8
额定峰值耐受电流
100
9
额定1min 工频耐受电压(有效值)
相对地、相间
kV
230
断口间
265
10
额定雷电冲击耐受电压(峰值)
相对地、相间
550
断口间
630
11
5min零表压耐压(有效值)
断口间、相对地
95
12
额定失步开断电流
kA
Ie×25%
13
近区故障开断电流
Ie×90%,Ie×75%
14
额定线路充电开断电流
A
50
15
额定操作顺序
—
O-0.3s-CO-180s-CO
16
首开极系数
—
1.5
17
合闸时间
ms
≤135
18
分闸时间
≤32
19
开断时间
≤60
20
合分时间
60
21
分闸同期性
2
22
合闸同期性
3
23
额定SF6气体压力 (20℃)
Mpa
0.5
24
SF6气体年漏气率
—
≤0.5%
25
气体水分含量
ppm(v/v)
≤150
26
无线电干扰电平
μV
≤2500
27
机械寿命
次 times
6000
28
每台断路器质量
kg
1400
29
每台充入SF6气体质量
6
30
每极主回路电阻
μΩ
40
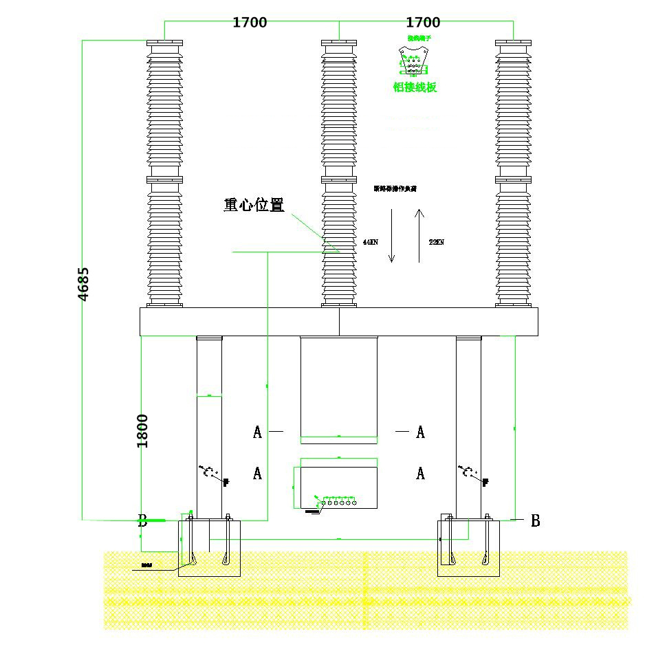
LW36-126型户外六氟化硫断路器外形尺寸:

LW36-126型户外六氟化硫断路器订货须知:
产品的布置方式是户内或户外,以及安装方式。
额定电压、额定电流和短路开断电流。
电流互感器、电压互感器、避雷器的型号、名称、电流比、电
压比、二次线圈数量、准确级及额定输出。
接地开关数量及操作方式。
户外布置时是否配置杆塔和间隔支撑母线。
用户其它特殊要求可以协商。
LW36-126型户外六氟化硫断路器图片:




