ZN12-40.5户内真空断路器
ZN12-40.5型户内真空断路器概述:
ZN12-40.5型真空断路器为乐清市吉电电气有限公司自主研发生产,适用于额定电压35kV,三相交流50Hz的户内高压开关设备,是引进德国西门子公司3AF技术制造的产品。
本断路器于96年8月通过了国家机械部、电力部两部鉴定。
本断路器机构与开关一体,专用的弹簧储能式操动机构,可以用交直流储能操作,也可用手动操作。
本断路器结构简单、开断能力强、寿命长、操作功能齐全,无爆炸危险、维修简便,适合于发电厂、城市电网、变电所等输配电系统的控制或保护开关,尤其适用于开断重要负荷及频繁操作的场所。
ZN12-40.5型户内真空断路器引用标准:
GB/T11022-1999《高压开关通用技术条件》 GB1984-1989《交流高压断路器》 GB311.1-1997《高压输变电设备的绝缘配合》
GB/T11022-1999《交流高压电器动热稳定试验方法》 GB/T4473-1996《交流高压断路器的合成试验》
GB7675-1987《交流高压断路器的开合电容器组试验》
ZN12-40.5型户内真空断路器使用环境:
海拔高度:不高于1000m
环境温度:最高+40℃ 最低-25℃
相对湿度:日平均不大于95%,月平均不大于90%
地震裂度:低于8度。无火灾、爆炸危险,无腐蚀性气体及剧烈震动场所。
ZN12-40.5型户内真空断路器灭弧原理:在真空中由于气体分子的平均自由行程很大,气体不容易产生游离,真空的绝缘强度比大气的绝缘强度要高的多。当开关分闸时,触头间产生电弧。触头表面在高温下挥发出金属蒸气,由于触头设计为特殊形状,在电流通过时产生一磁场,电弧在此磁场力的作用下快速运动。在金属圆筒(即屏蔽罩)上凝结部分金属蒸气。电弧在自然过零时熄灭了,触头间的介质强度又迅速恢复起来。
本断路器采用了特殊的触头材料,使灭弧室开断能力较高,截流水平较低,并且有很长的电寿命。
ZN12-40.5型户内真空断路器操作机构:
操作机构主要由储能机构、锁定机构、分闸弹簧、开关主轴、缓冲器及控制装置、组成。
储能机构主体是一个外壳为铸铝的减速箱,减速箱内是两套蜗轮蜗杆,储能轴横穿减速箱中,与蜗轮蜗杆无机械联系。储能轴上套一轴套,此轴套用键连在大蜗轮上,轴套上有一轴销,上面装一棘爪,在储通轴的右端有一凸轮,凸轮上有缺口,棘爪通过此缺口来带动凸轮转动。在储能轴的左端装有一曲柄,合闸弹簧一端挂在此曲柄上。
减速箱的轴销上装有一个三角形的杠杆,杠杆上装有一滚针轴承,凸轮装合闸弹簧的能量传给此轴承上。三角形杠杆的另一个孔,用轴销连接一连杆,该连杆的另一端装在主轴拐臂上,形成四连杆机构,合闸力通过该机构传给开关主轴。减速箱的轴销上还装有一滚针轴承,作为锁住闸掣子用。
在开关主轴的拐臂上装有分闸弹簧,主轴上还有三对拐臂,其中两对分别作用在合闸橡皮缓冲器和分闸油缓冲器上,另一对拐臂上装一滚针轴承作为锁住分闸掣子用。该产品的合、分闸掣子完全相同.

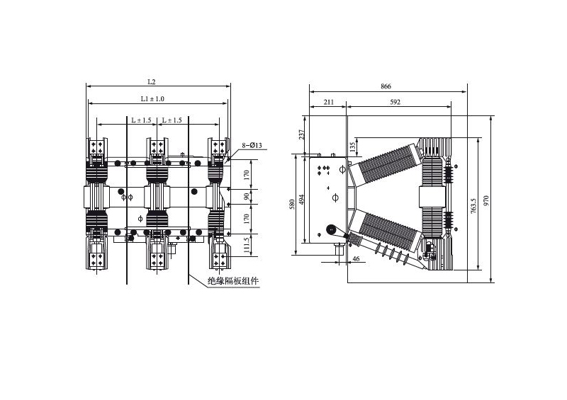
ZN12-40.5型户内真空断路器外形及安装尺寸:


