ZN63(VS1)-12型户内真空断路器概述:
首先感谢您使用乐清市吉电电气有限公司公司生产的ZN63(VS1)-12型系列 断路器适用于三相交流50Hz,额定电压为12KV的户内装置,可供工矿企业,电力系统发电变配电做电气系统的保护和控制之用,更适用于频繁操作的场所户内高压真空断路器,可配合HXGN15-12,KN28-12,KYN96-12等高压开关柜。为了使您能够安全 正确地安装和使用我们的产品,请务必在此之前阅读本安装说明书,并按本说明书及有关电力设备安装规范和运行操作规程的要求进行实施。
ZN63(VS1)-12型户内真空断路器型号含义:

ZN63(VS1)-12型户内真空断路器使用环境:
1 环境温度不高于+40℃,不低于—25℃(允许在—30℃时储运);
2 海拔高度不大于1000m;
3 空气相对湿度平均不大于95%,饱和蒸汽压日平均值不大于2.2×10Mpa,月平均值不大于1.8×10Mpa;在高温度期间内温度急降时,可能凝露;
4 地震烈度不超过8度;
5 无火灾 爆炸 严重污染 化学腐蚀及剧烈震动场所。
ZN63(VS1)-12型户内真空断路器主要技术参数:
1. 固定式 可移开式断路器:
|
产品型号 |
ZN63(VS1)-12-20 |
|
|
|
|
额定电压 |
kV |
12 |
||
|
A |
630 1250 |
1250 1600 2000 |
1600 2000 |
|
|
|
||||
|
额定频率 |
Hz |
50 |
||
|
额定工频耐受电压(一分钟) |
|
42 |
||
|
额定雷电冲击耐受电压(峰值) |
kV |
75 |
||
|
额定短路开断电流 |
|
20 |
31.5 |
40 |
|
额定短路关合电流(峰值) |
kA |
63 |
80 |
100 |
|
额定短时耐受电流(4S) |
kA |
20 |
31.5 |
40 |
|
额定峰值耐受电流 |
kA |
63 |
80 |
100 |
|
额定短路开断电流开断次数 |
kA |
50 |
||
|
重合闸操作顺序 |
次 |
分—0.3S—合分—180S—合分 |
||
|
每相导电回路电阻 |
μΩ |
≤40 |
≤30 |
≤25 |
|
机械寿命 |
次 |
100000 |
||
|
触头开关 |
mm |
11±1※ |
||
|
超行程 |
mm |
5±1※ |
||
|
平均合闸速度(5mm-触头闭合) |
m/s |
0.4~0.8※ |
||
|
平均分闸速度(0-5mm行程) |
m/s |
0.7~1.2※ |
||
|
触头合闸弹跳时间 |
ms |
0 |
||
|
三相触头合 分闸不同期 |
ms |
≤2 |
||
|
相间中间距离 |
mm |
210 |
275 |
|
|
动 静触头允许磨损厚度 |
mm |
≤3 |
||
|
合闸触头接触压力 |
N |
≥2000 |
≥3100 |
≥4100 |
※注:国内 外不同型号真空灭弧室,参数有相应的变化 外形尺寸图

2.固定式 可移开式断路器:
|
名称 |
电压 |
项目 |
单位 |
MCD-Ⅰ |
MCD-Ⅱ |
MCD-Ⅲ |
|
20 kA |
25 kA 31.5 kA |
40 kA |
||||
|
合闸线圈 |
DC220V |
工作电流 |
A |
45 |
60 |
90 |
|
电阻(20℃) |
Ω |
4.9±0.25 |
3.7±0.19 |
2.5±0.13 |
||
|
分闸线圈 |
DC220V |
工作电流 |
A |
2.5 |
||
|
电阻(20℃) |
Ω |
88±4.4 |
||||
|
交流操作 |
AC170-260 |
输入电流 |
A |
0.6 |
||
3.分体式配用永磁机构电磁线圈技术参数:
|
名称 |
电压 |
项目 |
单位 |
MCD-Ⅰ |
MCD-Ⅱ |
MCD-Ⅲ |
|
20 kA |
25 kA 31.5 kA |
40 kA |
||||
|
合闸线圈 |
DC220V |
工作电流 |
A |
50 |
70 |
100 |
|
电阻(20℃) |
Ω |
4.4±0.22 |
3.15±0.17 |
2.2±0.11 |
||
|
分闸线圈 |
DC220V |
工作电流 |
A |
2.5 |
||
|
电阻(20℃) |
Ω |
88±4.4 |
||||
|
交流操作 |
AC170-260 |
输入电流 |
A |
0.6 |
||
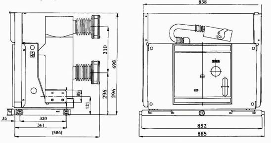
4.可移开式断路器所配底盘车的尺寸及轮距:
|
规格 |
L(mm) |
|
25-31.5KA/1250A相间距210mm |
620 |
|
40KA/2000-3150相间距275mm |
820 |
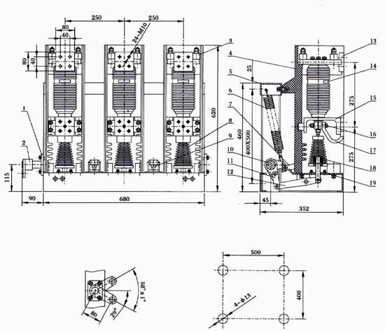
5. 固定式外行尺寸(见下图):
|
额定电流(A) |
630 |
1250 |
1600 |
|
额定短路开断电流(KA) |
20,25 |
20,25,31.5 |
31.5 |
相间距为275(mm)
|
额定电流(A) |
1600 |
20000 |
2500 |
3150 |
|
额定短路开断电流(KA) |
31.5 40 |
|||
相间距为275(mm)
8.4 可移开式断路器外行尺寸(见图):
|
额定电流(A) |
630 |
1250 |
1600 |
|
额定短路开断电流(KA) |
20,25 |
20,25,31.5 |
31.5 |
|
配合静触头尺寸(mm) |
φ35 |
φ49 |
φ55 |
相间距离210(mm)
|
额定电流(A) |
1600 |
2000 |
2500 |
3150 |
|
额定短路开断电流(KA) |
31.5,40 |
31.5,40 |
31.5,40 |
31.5,40 |
|
配合静触头尺寸(mm) |
φ79 |
φ109 |
||
相间距离275(mm)
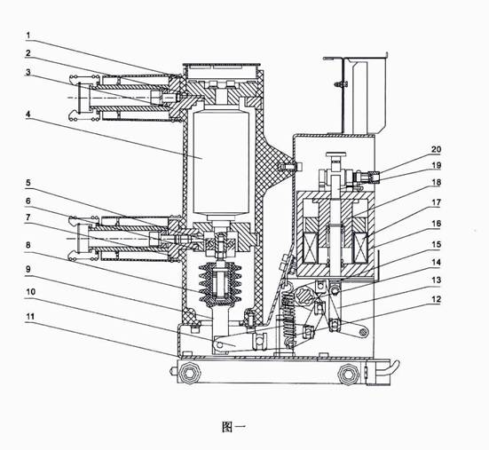
6. 固定式、可移开式断路器产品结构及工作原理(见下图):
1.绝缘筒 2.上支架 3.上出线座 4.真空灭弧室
5.软连接 6.下支架 7.下出线座 8.碟簧
9.绝缘拉杆 10.传动臂 11.断路器壳体 12.分闸拉簧
13.连接板 14.主轴 15.超行程调整片 16.外磁轭
17.合、分闸线圈 18.动铁芯 19.输出轴 20.手动分闸装置
ZN63(VS1)-12型户内真空断路器主体结构:
1 断路器的主题部分设置在由环氧树脂采用APG工艺浇注而成的绝缘筒内,这种结构能有效地防止包括外力冲击,污秽环境等外部因素对真空灭弧室的影响。断路器主体安装在断路器框架的前部,与永磁操动机构连接成一个整体。
2 断路器在合闸是主回路电流路径:
上进线端3经真空灭弧室4的静触头、动触头通过导电夹、软连接,至下出线端18。
3 合闸缓冲装置:
独特设计的合闸缓冲装置直接安装在上进线端3上方,能有效地吸收合闸后的剩余功,真正实现了合闸无弹跳。
4 永磁操动机构:
创新性磁路设计及嵌入式固定方式,使永磁操动机构的结构及布局更家完美,合理,简单。
5 电动合闸操作
机构若接到合闸信号,合闸线圈17得电产生电磁场,使动铁芯18被吸收合向下运动,通过输出轴19显示合闸信号并通过连接板13带动主轴14转动,通过转动臂10和绝缘拉杆9带动真空灭弧室的动导电杆向上运动,与此同时,触头弹簧8被压缩,分闸弹簧12被拉长。动、静铁芯接触经永磁锁扣完成合闸操作。
6 电动分闸操作
合闸动作完成后,一旦接到分闸信号,分闸线圈17得电形成电磁场,接除合闸磁锁扣,使动铁芯18向上运动,断路器主轴14在分闸拉簧12和触头弹簧8作用下转动,带动真空灭弧室4的动导杆向下运动,从而完成分闸动作。与此同时,分闸拉簧12复位,分闸指示及计数器进行显示。
7 手动合闸操作:(不允许主回路带电)
在对开关进行维护检测时,需要进行手动合闸操作。将手动合闸套管接在手动合闸拐臂上,下压合闸套管,使动触头与静触头闭合,靠永磁场的吸力,使合闸稳态保持,然后必须拔下手动合闸套管(以免发生危险),从而完成手动合闸过程。
8 手动分闸操作:
在对开关进行维护检测或运行出现故障需进行紧急分闸操作时,拉动手分拉手使手分凸轮轴转动产生推力,克服合闸保持吸力,使动铁芯18与上磁轭、内磁轭的吸合面之间产生间隙,机构的合闸保持吸力锐减,在触头弹簧力和分断弹簧力的共同作用下,使动、静触头快速分离,至分闸稳态保持,从而完成手动分闸过程。
9真空灭弧室工作原理
真空是用密封在真空中的一对触头来实现电力电路的接通和分断,是利用真空作为绝缘介质的。当其开断一定数量的电流时,动、静触头在分离时,触头间将燃烧真空电弧,随着触头开距的增大,电弧电流过零,触头间隙中的介质迅速由导体转变成绝缘体,于是电流被分断,开断结束。
10 防误联锁
11断路器合闸操作完成后,辅助开关的位置切换,将合闸回路断开。在断路器未分闸时,无法对断路器进行第二次合闸操作。
12 手车式断路器在未到达试验位置时,底盘车内位置开关接点未闭合,无法对断路器进行合闸操作。
13手车式断路器在试验位置或工作位置合闸后,断路器主轴拐臂压住底盘车联锁弯板,使联锁弯板 扣住摇进丝杠,手车将无法移动,防止在合闸状态下推进或拉出负荷区。
14 固定式、可移开式内部电气原理图
注:图示在试验位置、分闸状态。
|
符号 |
名称 |
作用 |
|
HC\FC |
合、分闸接触器 |
控制合分闸 |
|
SA |
辅助开关 |
转换电路 |
|
XT |
二次插件 |
控制线汇总 |
|
YC |
电磁线圈 |
控制合、分闸 |
|
S8、S9 |
底盘车辅助开关 |
位置开关 |
|
R |
电阻 |
分闸限流 |
VSM(2)
手车式真空断路器直流操作电气原理图
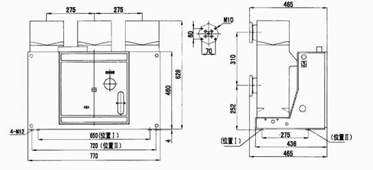
15 断路器与体推荐配合尺寸
16 VSM(2) (800)与柜体(800)推荐配合尺寸示意图:
|
额定电流(A) |
630 |
1250 |
1600 |
|
额定短路开断电流(kA) |
25,31.5 |
25,31.5,40 |
31.5,40 |
|
配合静触头尺寸D(mm) |
φ35 |
φ49 |
φ55 |
17 VSM(2) (1000)与柜体(1000)推荐配合尺寸示意图
|
额定电流(A) |
1600 |
2000 |
2500 |
3150 |
4000 |
|
额定短路开断电流(kA) |
31.5,40 |
31.5,40 |
31.5,40 |
31.5,40 |
40 |
|
配合静触头尺寸D(mm) |
φ79 |
φ109 |
|||
18 分体式断路器外形结构及安装尺寸(见下图)
附图说明:
- 轴承座 6.分闸弹簧 11.连板 16.导电夹
- 输出拐臂 7.缓冲拐臂 12.传动拐臂 17.软连接
- 合闸缓冲装置 8.绝缘拉杆 13.上出线座 18.触头弹簧
- 绝缘筒 9.油缓冲器 14.真空灭弧室 19.导向板
- 框架 10.主轴 15.下出线座
19 分体式断路器工作原理
VSM(2)型分体式户内高压真空断路器配用永磁保持电磁操动机构(也可配用CD10、CD17电磁操动机构及CT19弹簧操动机构),操动机构通过转动轴、拐臂与断路器主轴相连,在合分闸过程中,主轴转动,通过绝缘拉杆带动真空灭弧室动触头以规定的机械参数做合分闸运动(主轴合、分闸转角为58º ±1º)。为保证动触头在合分闸过程中动作良好,提高开短路电流能力和真空灭弧室的机械寿命,真空灭弧室上下部分别装有合闸缓冲装置和辅助导向装置。
下面以永磁操动机构为例介绍断路器的工作原理:
20 电动合闸操作
当开关接到合闸指令时,永磁机构的电磁线圈瞬间通以正向直流或正向脉冲电流,电磁线圈产生的电磁场和永磁体的永磁场正向叠加,产生的电磁力,使动铁芯作直线运动,同时通过传动轴和输出拐臂2带动主轴9、传动拐臂11等传动系统转动。并使绝缘拉杆8向上直线运动,带动真空灭弧室的动触头以适当的速度与静触头闭合,同时压缩触头弹簧18使其产生所需的压力,达到规定的接触行程(超行程)。此时动铁芯与上磁轭、内磁轭的接触面紧密地吸合在一起,靠永磁场的吸力,使合闸稳态保持,从而完成电动合闸过程。
21 电动分闸操作
当开关接到分闸指令时,永磁操动机构的电磁线圈瞬间得电,通以反向直流或反向脉冲电流,电磁线圈产生的电磁场和永磁体的永磁场反向叠加,使机构的合闸保持力锐减,在触头弹簧18和分闸弹簧6力的共同作用下动铁芯快速向下运动,通过转动轴和输出拐臂2带动主轴9,传动拐臂11等整个传动系统运动,同时绝缘拉杆8带着动触头以适当的速度与静触头分离。至动铁芯运动到下磁轭,靠永磁场的吸力,使分闸稳态保持,从而完成电动分闸过程。
22 手动合闸操作(不允许主回路带点)
在对开关进行维护检测时,需要进行手动合闸操作。将手动合闸套管套接在手动合闸拐臂上,下压合闸套管,推动顶杆使传动轴旋转,带动主轴9转动通过传动拐臂11、绝缘拉杆8使动触头闭合,靠永磁场的吸力,使合闸稳态保持,然后务必下手动合闸套管(以免发生危险—),从而完成手动合闸过程。
23手动合闸操作
在对开关进行维护检测或运行出现故障进行紧急分闸操作时,拉动手分拉板使手分凸轮轴转动,产生推理克服合闸保持力,是动铁芯与上磁轭、内磁轭的吸合面之间产生间隙,机构的合闸保持力锐减,在触头弹簧和分断弹簧力的共同作用下,动、静触头快速分离,至分闸稳态保持,从而完成手动分闸过程。
24分体式所配永磁机构内部电气原理图
(图纸后给)
|
符号 |
名称 |
作用 |
符号 |
名称 |
作用 |
|
HKM |
合闸接触器 |
控制开关合闸 |
HA |
合闸按钮 |
发送合闸指令 |
|
FKM |
分闸接触器 |
控制开关分闸 |
TA |
分闸按钮 |
发送分闸指令 |
|
SR |
辅助开关 |
转换电路 |
X |
接线端子 |
控制线汇总 |
|
YC |
电磁线圈 |
控制合、分闸 |
R1 |
电阻 |
限流 |
|
HD |
合闸指示灯 |
监视开关位置 |
R2 |
电阻 |
限流 |
|
LD |
分闸指示灯 |
监视开关位置 |
U※ |
电源控制器 |
提供操作电流 |
- 注:无直流屏提供直流操作电源时选用。
ZN63(VS1)-12型户内真空断路器安装:
1 断路器从包装箱中起吊时,吊钩应挂在断路器上有明显标识的起吊孔处,搬移时不得使上、下出线臂受力,同时不应让断路器受到较大的冲击振动。注:在正式安装操作前,请按要求去除起吊装置。
2 断路器出厂前已经做过严格的出厂检验,参数均符合技术要求。在正式安装前应做好以下准备工作:
3 检查断路器有无损坏,真空灭弧室有无破裂,漏气,各部螺丝有无松动;
4检查产品铭牌、合格证书是否与订货单相符,装箱单是否与实物相符;
5清除表面灰尘污垢,尤其是绝缘表面;
6 手动合、分断路器5次,检查断路器合、分闸位置指示是否正常;
7 电动合、分断路器5次,检查断路器合、分闸位置指示是否正常;
8 参照合格证上的参数,检查断路器的触头开距、超行程,是否满足要求;
9手车式断路器按如下步骤操作:
将摇进手柄插入摇进孔中,顺时针摇动为推进,逆时针摇动为推出。推进总行程约为200 mm。在分闸状态下,应顺利进入试验位置或工作位置,请中速摇动手柄约20圈,当听到“嗒”的一声即为到位(切忌用力过大而损伤摇进机构)。
10 在操作过程中可能出现的现象:
|
序号 |
现象 |
原因 |
|
1 |
不能合闸 |
1、断路器已处于合闸位置状态 |
|
2、手车式断路器未完全进入试验位置或工作位置 |
||
|
3、断路器电磁线圈电源正、负极性接反 |
||
|
4、二次线路不准确 |
||
|
2 |
不能摇进摇出 |
1、断路器处于合闸位置状态 |
|
2、摇进手柄未完全插入摇进孔 |
||
|
3、摇进机构未完全到试验位置,致使锁板不能与柜体解锁 |
||
|
4、柜体接地联锁未解开 |
ZN63(VS1)-12型户内真空断路器维护保养:
本公司生产的断路器叙用特制滑动轴承,采用表面防锈处理工艺,陪用长效润滑脂,在政策使用条件下,10~20年不需要检修,但由于使用环境的差异,仍需要进行必要的检查和维护工作:
1视工作环境在6~12个月内操作2000次时,对断路器本体进行适当检查。在外观检查后,需对设备表面的污秽受潮部分进行清洗,用干布擦拭绝缘件表面,然后用沾有清洗剂的绸布用去其他误会物(注意所用的清洗剂能适用于塑料或合成塑料材料)。
2当短路器长期放置时,可能使断路器活动部位产生阻滞,每年应对断路器进行至少5次的合分闸操作。
3断路器每操作2000次或每年应对断路器进行1次绝缘测试以判断断路器真空灭弧室是否漏气或其他原因造成绝缘强度的降低。
4断路器每操作2000次或每年应对断路器的触头开距,超行程同期性等参数进行1次检测,超过技术要求的及时调整。
5在使用中应注意触头的磨损量,记录投入使用时导杠伸出导向板的长度H,当长度减少3mm时,应及时更换真空灭弧室。
6对于频繁操作场所,应注意严格控制在技术条件规定的操作次数范围内,不能在超出使用寿命后继续使用。
7随机文件
8产品合格证
9安装使用说明书
10装箱单
11 附件
12可移开十:手动合闸杠杆;手车摇进手柄
13固定式:手动合闸杠杆
14分体式(配永磁机构):永磁操作机构;传动轴;传动拐臂;连接拉杠;手动合闸套管。
15 备品备件
部分备品、备件如 真空灭弧室、永磁机构电磁线圈等
|
注意: 为防止以意外事故,在对操作机构进行加润滑脂等各项工作时,应在断路器未合闸状态下进行。 对断路器各项故障维修应由受过专业培训的人员或生产厂家服务人员进行,以作出正确的调整工作。 |

